Tampa Crossdraft Paint Booths - 239-208-9270
Crossdraft paint booths intake fresh air through the filtered front doors of the booth or through a bridge style intake chamber located in the front of the booth. of booth above the product doors. The clean filtered air is drawn through the booth and exhausted through a filter system at the other end. This type of spray booth makes efficient use of shop space and is available in solid back, drive through, and reverse flow designs. Reverse flow paint booths intake air through filters in the back wall. The solid doors are at the exhaust end of the booth. This provides cleaner intake filtration and better control of shop dust.
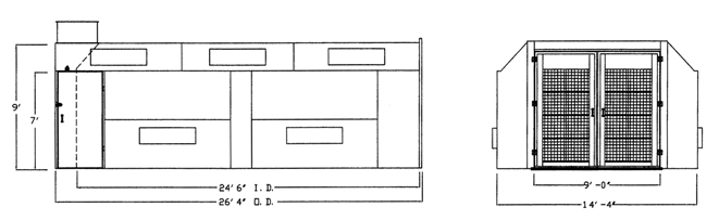
Standard Working Dimensions: 14' Wide x 9' Tall x 26' Deep
Construction Features:
Panels:
Panels are fabricated from 18-gauge prime quality galvanized steel. Panels are fastened together with nuts and bolts for maximum rigidity and are to be sealed with the provided caulk following assembly.
Illumination – 10 Light Fixtures:
Lighting is provided by 48” long, 4-tube, 32 watt, T-8, fluorescent type fixtures. All fixtures are ETL listed and approved for their intended use and placement. Fixtures are supplied with dual ballasts to accept either 120V or 277V power. Ballasts carry a 5 year limited warranty.
Filtration:
Intake air filters: Rated by UL as Class 2 and are EPA registered as environmentally safe. Filters are self-supporting in an internal frame sized 20'' x 20'' x 1''. One set of filters will be supplied. Exhaust air filters are fiberglass paint arrestor pads made specifically for the collection of paint over spray. These filters are UL rated as Class 2. A filter holding grid is provided for each filter cell. This unit is provided with one set of filters and one manometer.
Exhaust – 12,600 C.F.M. Standard:
Tube axial type duct fan(s) specifically designed and constructed for use in paint spray booths and similar applications is provided for exhaust. A precision balanced, fabricated, aluminum non-sparking fan blade moves the air through the fan. Bearings are permanently lubricated and mounted in rubber isolators for smooth operation. The motor, drive and bearings are isolated from the exhaust air stream. This unit will utilize one (1) 30'' diameter fans driven by a 3 HP motors (208/230/460V/3PH/60HZ), operating at 12,600 SCFM at ½'' static pressure
Product Doors:
One (1) set of solid product entry doors shall be provided. The doors are skinned with an 18 Ga. galvanized steel sheet, sealed to the frame, and welded in place. These doors are provided with a closed cell foam rubber weather stripping seal about the perimeter and a neoprene rubber sweep seal at the threshold. The mounting hardware provided includes a panic type safety latch and four 9'' door pulls. These shall be double doors having a clear opening of approximately 9'-0'' wide by 8'-10'' tall.
Personnel Access Door:
One (1) personnel access door is provided as a double wall 18-gauge galvanized steel unit sized at 36'' x 84'' and is provided pre-hung in a heavy gauge steel frame ready for mounting to the spray booth. The mounting hardware includes a panic type safety latch and two 6'' door pulls.

